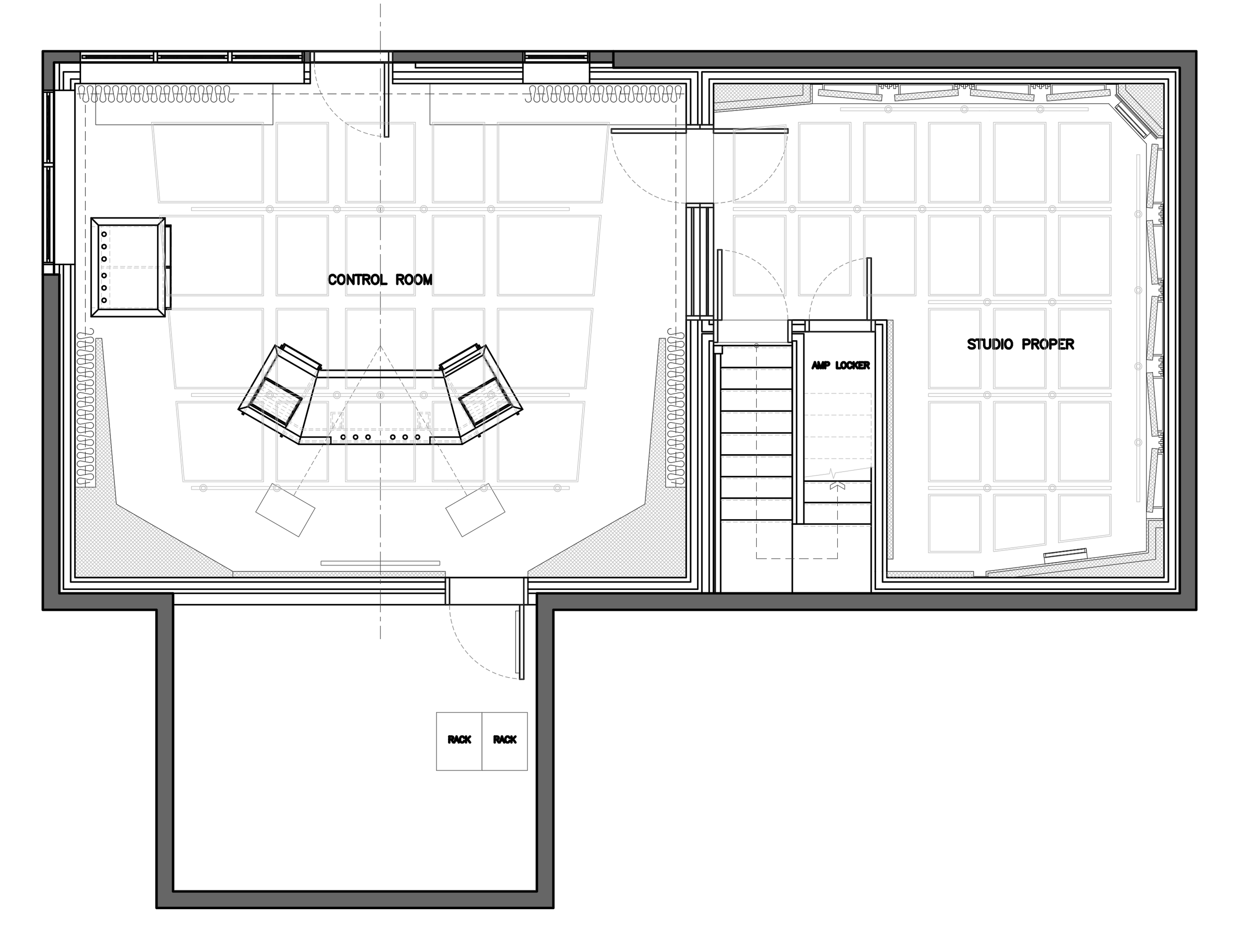
My personal studio, Zeno Mountain, is a world class writing, recording, and mixing space in Vermont, designed by legendary architect and acoustician Martin Pilchner. The design borrows from the best rooms I’ve worked in over the last 20 years as an artist, session musician, and producer. Perched atop an open hillside on 21 acres with views of the Adirondack mountain range, large windows bathe the 25’ x 22’ control room in natural light. The live room is comfortably big and houses my extensive collection of synths, unique stringed instruments, vintage drums, and amps.


COMPUTER

Apple MacBook Pro (2024) Tahoe 26.1 M4 Pro Chip 14 core-CPU 48GB Unified Memory 2TB SSD Storage

Avid ProTools 2025.10 Studio

MONITORING

ATC SCM45A Pro

Avantone Active Mix Cubes

Crane Song Avocett IIA

CONVERTERS

Antelope Orion 32 Gen 4+

CUE SYSTEM

Mytek Private-Q Headphone System (6x)

PREAMPS

API 512v (4x)

Ironage QPP Preamp with Flickenger amp mods (4x)

Vintech x73i (2x)

GKL MA-PEQ (1x pre with Pultec style EQ)

EQ

API 550A (2x)

Avedis E12G (2x)

Electrix Filter Factory

COMPRESSORS / LIMITERS

Spectra Sonics 610 Comp Limiter

Overstayer Audio Modular Channel

Distressor EL8-X

Standard Audio Level-Or Mk2 (2x)

DBX 160x (2x)

API 2500

Empirical Labs EL7 Fatso Jr

DI BOXES

Radial EXTC (2x)

Tarulli custom DI with triad A-10 transformer

Radial JDI Passive DI (mono)

Radial JDI Passive DI (stereo)

Franklin Audio SS-6 Switchable Input Stereo DI

MIDI

iConnectivity Mio XL 8ch MIDI interface

NI Kontrol S49

NI Maschine Mk3

PATCHBAYS

Audio Accessories 96TT (4x)

DELAY

Korg SDD-3000 Digital Delay

Roland RE-501 Space Echo

Multivox MXD-5 analog delay and spring reverb

REVERB

Ebo Customs Spring E-Verb

AKG BX-10

Furman RV-1

TAPE MACHINES

Tascam BR-20 2-track reel to reel

Tascam 414 Mkii 4-track

Tascam 424 4-track

MICROPHONES

Coles 4038

Beyerdynamic M 160

AEA R84A

Sennheiser 421

AKG C 414

Electro Voice RE20

CAD Equitek E-100

Shure SM7B

Shure Beta 58A

Shure SM57 (3x)

KEYBOARDS

Roland SH-101

Roland Juno 106

Mellotron M4000D

Ensoniq Mirage

Korg FS MS-20

Casio SK-1

Ludwig Glockenspeil

Marxophone

ELECTRIC GUITARS

Steve Reynolds 17” archtop

1963 Fender Jazzmaster

Jerry Jones 12-string

Teo Mandotar

Steve Reynolds 335

Clement Jazzmaster

Clement Coodercaster

1965 Silvertone Jupiter with Steve Reynolds custom neck

Williams S-10 pedal steel

ACOUSTIC GUITARS

60’s Gibson nylon string

Steve Reynolds baritone rubber bridge acoustics (2x)

Steve Reynolds tenor octave nylon string

Martin D-28

Steve Reynolds dreadnaught

BASSES

Steve Reynolds Precision Bass

1967 Fender Mustang Bass

1965 Harmony H-22

AMPS

1970 Ampeg B-15

Milkman Sound Creamer 20w

Silvertone 1481 5W

DRUMS

‘60s Slingerland drumset

Istanbul Agop cymbals

Paper thin ‘60s Zildjian hi-hats

‘70s Ludwig Acrolite snare

DRUM MACHINES

Suzuki Omnichord

Acetone Rhythm Ace FR-2L

PEDALS

Extensive collection of boutique and vintage pedals including Shin-Ei, Electro Harmonix, XTS Custom Shop, Strymon, Chase Bliss, Boss, Red Panda, Snatchtronics, Tomkat, J Rockett, Ten Years Is A Decade, JHS, Del Rey Custom Shop, Digitech, Line 6, Death By Audio, TKOG, and Kay.

PLUGINS

Soundtoys, NI Komplete, Eventide, Plugin Alliance, iZotope, etc


GET IN TOUCH